Kļava 120 – apbūves laukums 120 m²
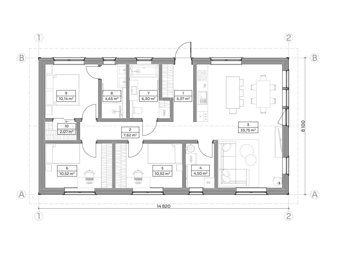
Dzīvojamā platība 98 m2. Optimāls vienstāvu dzīvojamās mājas projekts ar 3 atsevišķām guļamistabām. Projektam ir Arka-B raksturīgais stiklojums gaišām un mājīgām iekštelpām. Saimnieku blokā sava vannasistaba un ģērbtuve. Atšķirībā no modeļa Kļava 100, šim modelim ir lielākas guļamistabas un viesistaba.

3 atsevišķas guļamistabas
Viesistaba kopā ar virtuvi
2 atsevišķas vannasistabas
Master-bedroom bloks ar ģērbtuves telpu un sanmezglu
Kļava 120 optimāls modelis klasiskai mājai ar modernu stiklojumu
Māja būs piemērota tiem, kam vajadzīgas ne tikai 3 atsevišķas guļamistabas, bet arī lielu viesistabu. Arka-B raksturīgais stiklojums radīs gaišu un siltu atmosfēru, viesistabas augsti griesti līdz korei paplašinās telpu un radīs papildus komfortu.
Kļava 120 optimāls modelis klasiskai mājai ar modernu stiklojumu
Māja būs piemērota tiem, kam vajadzīgas ne tikai 3 atsevišķas guļamistabas, bet arī lielu viesistabu. Arka-B raksturīgais stiklojums radīs gaišu un siltu atmosfēru, viesistabas augsti griesti līdz korei paplašinās telpu un radīs papildus komfortu.
Projekta cenas
Pamati, no ārpuses gatava māja, iekšpusē līdz iekšdarbiem (1. stadija)
Pamati, no ārpuses gatava māja, iekšpusē līdz iekšdarbiem (1. stadija)
Plātņveida pamati - pamatnes sagatavošana, smilts, šķempas, ģeotekstils, ekstrudētais putupolistirols, dzelzbetona plāksne, cokola apdare. Silto grīdu caurules - kolektors.
HORIZONTĀLS ārējās apdares dēlis, divreiz krāsots
Pretgrauzēju barjera 25 mm
Kokšķiedras pretvēja plāksne 22 mm
C24 klases kokmateriāls kalibrēts, žāvēts, ēvelēts
OSB mitrumizturīga plāksne 12 mm biezumā
Siltinājums 250 mm
PHR 25/560 (Klasika Klik) Jumta profils, RR2H3 Rough Matt (Matēts)
C24 klases kokmateriāls spārēm
Siltinājums 300 mm
Jumta vēja kaste - apdares dēlis, iestrādāts pretinsektu siets
C24 klases kokmateriāls kalibrēts, žāvēts, ēvelēts; Accoustic minerālvate
Apdares dēlis aplodēm un stūriem, kā arī logu un durvju aiļu apdarei
Ārējās apdares dēļu krāsa, 2 reizes krāsots
PVC 3-stiklu pakešu logi
Koka konstrukcijas ārdurvis
Elektrības sadales kaste un vadu maģistrāles uz katru istabu; Sildkabelis + pāreja; 5 rindu sadale ar 60 automātiem. Elektrības vadi iestrādāti halogēnbrīvās, pašdziestošās gofrās.
Iekļauts viss, kas Pamatkomplektā plus iekšdarbi (2. stadija)
120 punkti, tajā skaitā līdz 2 gab. āra apgaismojumiem un 4 gab. āra rozetēm. Katrs slēdzis, lampa vai rozete ir viens punkts. Ziloņkaula krāsā slēdži un rozetes. Āra apgaismojum. Gaismekļi mājā - 6w LED gaismas paneļi.
Elektrības vadi iestrādāti halogēnbrīvās, pašdziestošās gofrās.
33.klases lamināts
Apdarītas ar krāsotu/beicētu vagondēli vai arī ar ģipškartonu 2 kārtās ( aizšuvotu, nošpaktelētu, nogruntētu un nokrāsotu klienta izvēlētajā tonī)
Apdarīti ar krāsotu/beicētu vagondēli vai arī ar ģipškartonu 1 kārtā ( aizšuvotu, nošpaktelētu, nogruntētu un nokrāsotu klienta izvēlētajā tonī)
kārba, aplodes, rokturi - pilns komplekts
Flīzes vai vinils
Reģipsis krāsots ar spec krāsu, vai flīzes
No saplākšņa / Plastikāta / Līmkoka
Poda, boilera, izlietnes, krānu pielikšana (darbs)
Bezvadu kontroles panelis Ajax HUB 2 Plus; FireProtect 2 RB (Heat/Smoke); Ajax WaterStop
Kombinētais siltumsūknis no Midea / katla apsaiste
Centralizētā rekuperācijas sistēma
Pamati, no ārpuses gatava māja, iekšpusē līdz iekšdarbiem (1. stadija)
Plātņveida pamati - pamatnes sagatavošana, smilts, šķempas, ģeotekstils, ekstrudētais putupolistirols, dzelzbetona plāksne, cokola apdare. Silto grīdu caurules - kolektors.
HORIZONTĀLS ārējās apdares dēlis, divreiz krāsots
Pretgrauzēju barjera 25 mm
Kokšķiedras pretvēja plāksne 22 mm
C24 klases kokmateriāls kalibrēts, žāvēts, ēvelēts
OSB mitrumizturīga plāksne 12 mm biezumā
Siltinājums 250 mm
PHR 25/560 (Klasika Klik) Jumta profils, RR2H3 Rough Matt (Matēts)
C24 klases kokmateriāls spārēm
Siltinājums 300 mm
Jumta vēja kaste - apdares dēlis, iestrādāts pretinsektu siets
C24 klases kokmateriāls kalibrēts, žāvēts, ēvelēts; Accoustic minerālvate
Apdares dēlis aplodēm un stūriem, kā arī logu un durvju aiļu apdarei
Ārējās apdares dēļu krāsa, 2 reizes krāsots
PVC 3-stiklu pakešu logi
Koka konstrukcijas ārdurvis
Elektrības sadales kaste un vadu maģistrāles uz katru istabu; Sildkabelis + pāreja; 5 rindu sadale ar 60 automātiem. Elektrības vadi iestrādāti halogēnbrīvās, pašdziestošās gofrās.
120 punkti, tajā skaitā līdz 2 gab. āra apgaismojumiem un 4 gab. āra rozetēm. Katrs slēdzis, lampa vai rozete ir viens punkts. Ziloņkaula krāsā slēdži un rozetes. Āra apgaismojum. Gaismekļi mājā - 6w LED gaismas paneļi.
Elektrības vadi iestrādāti halogēnbrīvās, pašdziestošās gofrās.
33.klases lamināts
Apdarītas ar krāsotu/beicētu vagondēli vai arī ar ģipškartonu 2 kārtās ( aizšuvotu, nošpaktelētu, nogruntētu un nokrāsotu klienta izvēlētajā tonī)
Apdarīti ar krāsotu/beicētu vagondēli vai arī ar ģipškartonu 1 kārtā ( aizšuvotu, nošpaktelētu, nogruntētu un nokrāsotu klienta izvēlētajā tonī)
kārba, aplodes, rokturi - pilns komplekts
Flīzes vai vinils
Reģipsis krāsots ar spec krāsu, vai flīzes
No saplākšņa / Plastikāta / Līmkoka
Poda, boilera, izlietnes, krānu pielikšana (darbs)
Bezvadu kontroles panelis Ajax HUB 2 Plus; FireProtect 2 RB (Heat/Smoke); Ajax WaterStop
Kombinētais siltumsūknis no Midea / katla apsaiste
Centralizētā rekuperācijas sistēma
Pamati, no ārpuses gatava māja, iekšpusē līdz iekšdarbiem (1. stadija)
Plātņveida pamati - pamatnes sagatavošana, smilts, šķempas, ģeotekstils, ekstrudētais putupolistirols, dzelzbetona plāksne, cokola apdare. Silto grīdu caurules - kolektors.
HORIZONTĀLS ārējās apdares dēlis, divreiz krāsots
Pretgrauzēju barjera 25 mm
Kokšķiedras pretvēja plāksne 22 mm
C24 klases kokmateriāls kalibrēts, žāvēts, ēvelēts
OSB mitrumizturīga plāksne 12 mm biezumā
Siltinājums 250 mm
PHR 25/560 (Klasika Klik) Jumta profils, RR2H3 Rough Matt (Matēts)
C24 klases kokmateriāls spārēm
Siltinājums 300 mm
Jumta vēja kaste - apdares dēlis, iestrādāts pretinsektu siets
C24 klases kokmateriāls kalibrēts, žāvēts, ēvelēts; Accoustic minerālvate
Apdares dēlis aplodēm un stūriem, kā arī logu un durvju aiļu apdarei
Ārējās apdares dēļu krāsa, 2 reizes krāsots
PVC 3-stiklu pakešu logi
Koka konstrukcijas ārdurvis
Elektrības sadales kaste un vadu maģistrāles uz katru istabu; Sildkabelis + pāreja; 5 rindu sadale ar 60 automātiem. Elektrības vadi iestrādāti halogēnbrīvās, pašdziestošās gofrās.
Atkarīgas no ģeogrāfiskās atrašanās vietas
Arhitekta pakalpojumi — projekta sagatavošana un saskaņošana būvvaldē nodrošina normatīvu ievērošanu un būvatļauju iegūšanu.
Mērnieka pakalpojumi — būvass un augstuma atzīmes pamatu nospraušanai nodrošina precīzu pamatu izvietojumu un atbilstību projektam.
Terases izbūve — stabila un estētiska terase ar ilgtspējīgu segumu, kas paplašina dzīvojamo ārtelpu.
Auto nojumes izbūve — praktiska nojume automašīnai vai tehnikai ar stabilu konstrukciju un ātru uzstādīšanu.
Iespējamās papildus izmaksas, ar ko pasūtītājam jārēķinās
Cenā nav iekļautas virtuves iekārta un citas mēbeles. Ņemiet vērā, ka papildus jums būs nepieciešams ierīkot ārējo kanalizāciju, pievienot ūdeni un pievadīt elektrību līdz ēkai. Ja ņemsiet kredītu ēkas būvniecībai, banka prasīs ierīkot arī celiņus un sētu.
- Ārējās inženierkomunikācijas (elektrība, ūdens, kanalizācija).
- Zemes gabala labiekārtošana (bruģis, sēta, zālājs).
- Mēbeles un sadzīves tehnika.
- Santehnika sanmezglā — montāžu veicam.
Atkarīgas no ģeogrāfiskās atrašanās vietas
Arhitekta pakalpojumi — projekta sagatavošana un saskaņošana būvvaldē nodrošina normatīvu ievērošanu un būvatļauju iegūšanu.
Mērnieka pakalpojumi — būvass un augstuma atzīmes pamatu nospraušanai nodrošina precīzu pamatu izvietojumu un atbilstību projektam.
Terases izbūve — stabila un estētiska terase ar ilgtspējīgu segumu, kas paplašina dzīvojamo ārtelpu.
Auto nojumes izbūve — praktiska nojume automašīnai vai tehnikai ar stabilu konstrukciju un ātru uzstādīšanu.
Iespējamās papildus izmaksas, ar ko pasūtītājam jārēķinās
Cenā nav iekļautas virtuves iekārta un citas mēbeles. Ņemiet vērā, ka papildus jums būs nepieciešams ierīkot ārējo kanalizāciju, pievienot ūdeni un pievadīt elektrību līdz ēkai. Ja ņemsiet kredītu ēkas būvniecībai, banka prasīs ierīkot arī celiņus un sētu.
- Ārējās inženierkomunikācijas (elektrība, ūdens, kanalizācija).
- Zemes gabala labiekārtošana (bruģis, sēta, zālājs).
- Mēbeles un sadzīves tehnika.
- Santehnika sanmezglā — montāžu veicam.

Maksājuma dalītā struktūra
Standartā mēs strādājam ar sekojošu maksājumu struktūru, taču, ja bankas noteiktā izmaksu kārtība atšķiras, mēs pielāgojamies un atrodam kopēju risinājumu
€4000
Pēc Līguma noslēgšanas
30%
Pēc būvatļaujas saņemšanas
20%
Pēc pamatu ieliešanas
30%
Pēc mājas paneļu montāžas
15%
Pēc ģipškartona izlikšanas
5%
Pēc pieņemšanas-nodošanas akta parakstīšanas
Paveiktie projekti
Ieinteresēja?
Aicinām sazināties ar mums, ja ir kādi jautājumi vai vēlaties saņemt piedāvājumu. Aizpildiet anketu un sazināsimies ar jums tuvākās dienas laikā!


.png)
.png)




