
Priede 60 – paaugstināta mansarda siena 80 cm
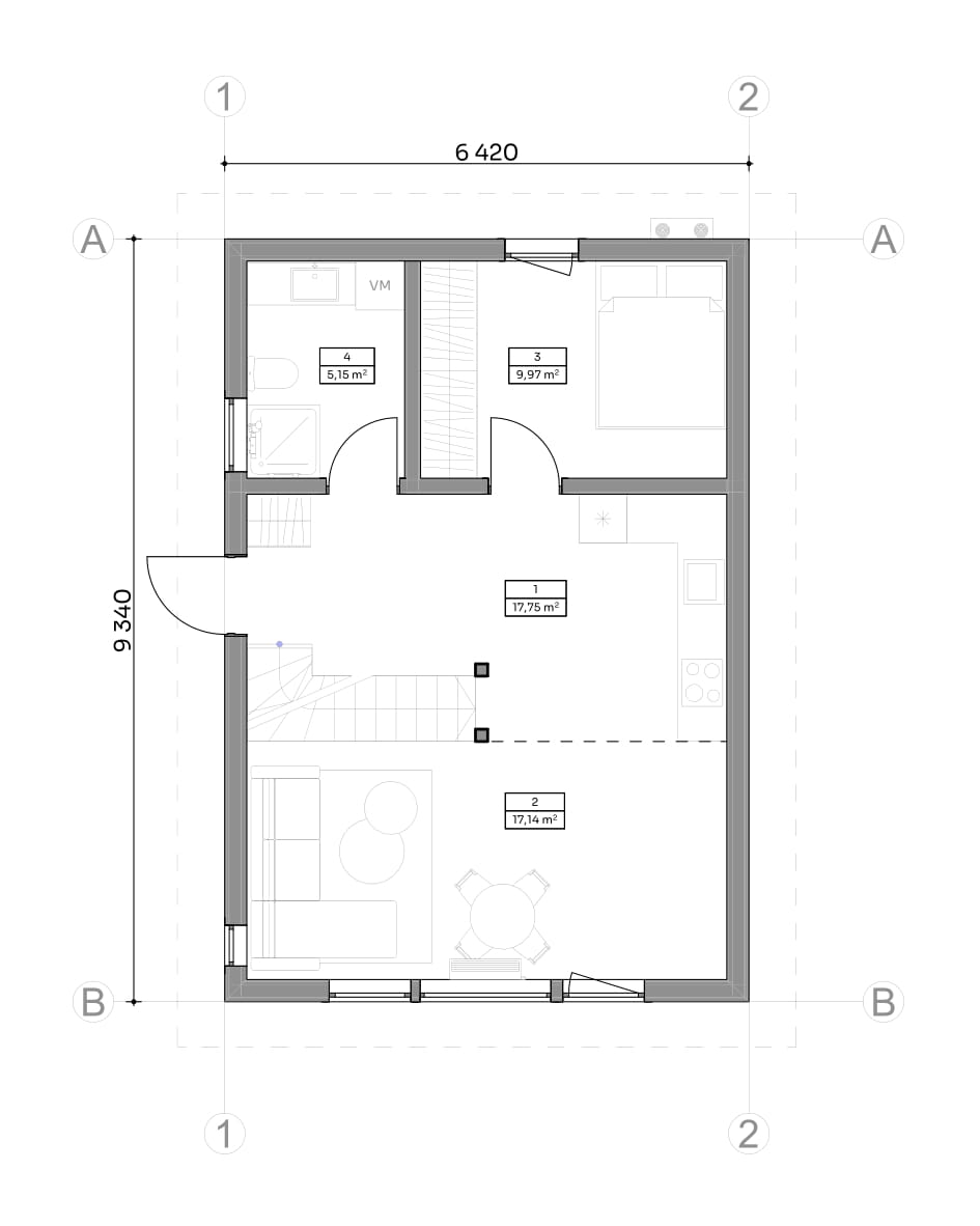
Kompakta un ērta dzīvojamā māja cilvēkiem, kuriem nepieciešamas vairākas bērnistabas. Pirmajā stāvā dzīvojamā platība 50 m2, mansardstāvā apdzīvojamā platība 30 m2. Paaugstinot mansardstāva sienu ( drempeļsienu) par 80 cm, iegūstam iespēju mansardstāvā izbūvēt 2 atsevišķas istabas un pat papildus WC.

Līdz 4 atsevišķām istabām
Viesistaba kopā ar virtuvi
Vannas istaba
Apdzīvojams mansardstāvs 30 m2
Projekts Priede 60 ļauj izvēlēties 1-2 guļamistabas 1. st. un 1-2 atsevišķas istabas 2. st
Atvieglota būvatļaujas saņemšana, kuru mēs paši klientam sakārtojam bez papildus atlīdzības. Lieliska izvēle, ja vēlaties kompaktu, ekonomisku, energoefektīvu un viegli uzturamu māju.
Projekta cenas
Pamati, no ārpuses gatava māja, iekšpusē līdz iekšdarbiem (1.stadija)
Pamati, no ārpuses gatava māja, iekšpusē līdz iekšdarbiem (1.stadija)
Ražotāja dokumentu izstrāde iesniegšanai būvvaldei (būvatļaujas saņemšanai)
Punktveida betona pamati. Betona stabi – 1m dziļumā, D=160mm; apmēram 70 gab. Pamati starp stabiem tiek izklāti ar ģeoteikstilu un apbērti ar dolomīta šķembām
Pretgrauzēju siets pa visu grīdas apakšu
C24 klases kokmateriāls kalibrēts, žāvēts, ēvelēts.
Melnā grīda durelis+grīdas ģipškartons
Siltinājums 200 mm
HORIZONTĀLS ārējās apdares dēlis, divreiz krāsots
Pretgrauzēju barjera 25mm
OSB mitrumizturīga plāksne 10 mm biezumā
C24 klases kokmateriāls kalibrēts, žāvēts, ēvelēts
Siltinājums 200 mm
C24 klases kokmateriāls kalibrēts, žāvēts, ēvelēts; Durelis impregnēts 18mm
Mansarda sienas (drempeļsienas) paaugstinājuma izbūve 80 cm augstumā
PHR 25/560 (Klasika Klik) Jumta profils, RR2H3 Rough Matt (Matēts)
C24 klases kokmateriāls spārēm
Siltinājums 200 mm
Jumta vēja kaste - apdares dēlis, iestrādāts pretinsektu siets
C24 klases kokmateriāls kalibrēts, žāvēts, ēvelēts; Accoustic 75mm minerālvate divās kārtās;
Apdares dēlis aplodēm un stūriem, kā arī logu un durvju aiļu apdarei
Ārējās apdares dēļu krāsa, 2 reizes krāsots
PVC 3-stiklu pakešu logi
Koka konstrukcijas ārdurvis
Elektrības sadales kaste un vadu maģistrāles uz katru istabu; Sildkabelis + pāreja; 3 rindu sadale ar 36 automātiem. Elektrības vadi iestrādāti halogēnbrīvās, pašdziestošās gofrās.
Iekļauts viss, kas Pamatkomplektā plus iekšdarbi (2.stadija)
3 rindu sadale ar 36 automātiem. Līdz 80 punktiem. Slēdži un rozetes. Āra apgaismojums pie durvīm, iekšā LED gaismekļi.
Elektrības vadi iestrādāti halogēnbrīvās, pašdziestošās gofrās.
33.klases lamināts
Apdarītas ar krāsotu/beicētu vagondēli vai arī ar ģipškartonu 2 kārtās ( aizšuvotu, nošpaktelētu, nogruntētu un nokrāsotu klienta izvēlētajā tonī)
Apdarīti ar krāsotu/beicētu vagondēli vai arī ar ģipškartonu 1 kārtā ( aizšuvotu, nošpaktelētu, nogruntētu un nokrāsotu klienta izvēlētajā tonī)
kārba, aplodes, rokturi - pilns komplekts
Flīzes vai vinils
Reģipsis krāsots ar spec krāsu, vai flīzes
No saplākšņa / Plastikāta / Līmkoka
Poda, boilera, izlietnes, krānu pielikšana (darbs)
Bezvadu kontroles panelis Ajax HUB 2 Plus; FireProtect 2 RB (Heat/Smoke); Ajax WaterStop
Sienu apdare, lamināts vai mīkstais segums uz grīdas
Pamati, no ārpuses gatava māja, iekšpusē līdz iekšdarbiem (1.stadija)
Ražotāja dokumentu izstrāde iesniegšanai būvvaldei (būvatļaujas saņemšanai)
Punktveida betona pamati. Betona stabi – 1m dziļumā, D=160mm; apmēram 70 gab. Pamati starp stabiem tiek izklāti ar ģeoteikstilu un apbērti ar dolomīta šķembām
Pretgrauzēju siets pa visu grīdas apakšu
C24 klases kokmateriāls kalibrēts, žāvēts, ēvelēts.
Melnā grīda durelis+grīdas ģipškartons
Siltinājums 200 mm
HORIZONTĀLS ārējās apdares dēlis, divreiz krāsots
Pretgrauzēju barjera 25mm
OSB mitrumizturīga plāksne 10 mm biezumā
C24 klases kokmateriāls kalibrēts, žāvēts, ēvelēts
Siltinājums 200 mm
C24 klases kokmateriāls kalibrēts, žāvēts, ēvelēts; Durelis impregnēts 18mm
Mansarda sienas (drempeļsienas) paaugstinājuma izbūve 80 cm augstumā
PHR 25/560 (Klasika Klik) Jumta profils, RR2H3 Rough Matt (Matēts)
C24 klases kokmateriāls spārēm
Siltinājums 200 mm
Jumta vēja kaste - apdares dēlis, iestrādāts pretinsektu siets
C24 klases kokmateriāls kalibrēts, žāvēts, ēvelēts; Accoustic 75mm minerālvate divās kārtās;
Apdares dēlis aplodēm un stūriem, kā arī logu un durvju aiļu apdarei
Ārējās apdares dēļu krāsa, 2 reizes krāsots
PVC 3-stiklu pakešu logi
Koka konstrukcijas ārdurvis
Elektrības sadales kaste un vadu maģistrāles uz katru istabu; Sildkabelis + pāreja; 3 rindu sadale ar 36 automātiem. Elektrības vadi iestrādāti halogēnbrīvās, pašdziestošās gofrās.
3 rindu sadale ar 36 automātiem. Līdz 80 punktiem. Slēdži un rozetes. Āra apgaismojums pie durvīm, iekšā LED gaismekļi.
Elektrības vadi iestrādāti halogēnbrīvās, pašdziestošās gofrās.
33.klases lamināts
Apdarītas ar krāsotu/beicētu vagondēli vai arī ar ģipškartonu 2 kārtās ( aizšuvotu, nošpaktelētu, nogruntētu un nokrāsotu klienta izvēlētajā tonī)
Apdarīti ar krāsotu/beicētu vagondēli vai arī ar ģipškartonu 1 kārtā ( aizšuvotu, nošpaktelētu, nogruntētu un nokrāsotu klienta izvēlētajā tonī)
kārba, aplodes, rokturi - pilns komplekts
Flīzes vai vinils
Reģipsis krāsots ar spec krāsu, vai flīzes
No saplākšņa / Plastikāta / Līmkoka
Poda, boilera, izlietnes, krānu pielikšana (darbs)
Bezvadu kontroles panelis Ajax HUB 2 Plus; FireProtect 2 RB (Heat/Smoke); Ajax WaterStop
Sienu apdare, lamināts vai mīkstais segums uz grīdas
Pamati, no ārpuses gatava māja, iekšpusē līdz iekšdarbiem (1.stadija)
Ražotāja dokumentu izstrāde iesniegšanai būvvaldei (būvatļaujas saņemšanai)
Punktveida betona pamati. Betona stabi – 1m dziļumā, D=160mm; apmēram 70 gab. Pamati starp stabiem tiek izklāti ar ģeoteikstilu un apbērti ar dolomīta šķembām
Pretgrauzēju siets pa visu grīdas apakšu
C24 klases kokmateriāls kalibrēts, žāvēts, ēvelēts.
Melnā grīda durelis+grīdas ģipškartons
Siltinājums 200 mm
HORIZONTĀLS ārējās apdares dēlis, divreiz krāsots
Pretgrauzēju barjera 25mm
OSB mitrumizturīga plāksne 10 mm biezumā
C24 klases kokmateriāls kalibrēts, žāvēts, ēvelēts
Siltinājums 200 mm
C24 klases kokmateriāls kalibrēts, žāvēts, ēvelēts; Durelis impregnēts 18mm
Mansarda sienas (drempeļsienas) paaugstinājuma izbūve 80 cm augstumā
PHR 25/560 (Klasika Klik) Jumta profils, RR2H3 Rough Matt (Matēts)
C24 klases kokmateriāls spārēm
Siltinājums 200 mm
Jumta vēja kaste - apdares dēlis, iestrādāts pretinsektu siets
C24 klases kokmateriāls kalibrēts, žāvēts, ēvelēts; Accoustic 75mm minerālvate divās kārtās;
Apdares dēlis aplodēm un stūriem, kā arī logu un durvju aiļu apdarei
Ārējās apdares dēļu krāsa, 2 reizes krāsots
PVC 3-stiklu pakešu logi
Koka konstrukcijas ārdurvis
Elektrības sadales kaste un vadu maģistrāles uz katru istabu; Sildkabelis + pāreja; 3 rindu sadale ar 36 automātiem. Elektrības vadi iestrādāti halogēnbrīvās, pašdziestošās gofrās.
Betons, siltinājums, pamatnes sagatavošana. Iestrādāti siltās grīdas caurules, kolektors
Gaiss- Gaiss Alpic Air. Ārējais bloks+ iekšējie bloki
Siltumsuknis Gaiss-Ūdens Midea
Oša koks, mēbeļu plāknes
Decentralizētās rekuperācijas iekārta, tā montāža
Starpsienas mansardstāvā — izbūve nodrošina atsevišķas telpas un papildu privātumu.
Mērnieka pakalpojumi — būvass un augstuma atzīmes pamatu nospraušanai nodrošina precīzu pamatu izvietojumu un atbilstību projektam.
Elektriskā siltā grīda ar termostatu — efektīva un ērti regulējama grīdas apkure, kas nodrošina vienmērīgu komfortu.
Atkarīgas no ģeogrāfiskās atrašanās vietas
Iespējamās papildus izmaksas, ar ko pasūtītājam jārēķinās
Cenā nav iekļautas kāpnes ar margām, virtuves iekārta un citas mēbeles. Ņemiet vērā, ka papildus jums būs nepieciešams ierīkot ārējo kanalizāciju, pievienot ūdeni un pievadīt elektrību līdz ēkai. Ja ņemsiet kredītu ēkas būvniecībai, banka prasīs ierīkot arī celiņus un sētu.
- Ārējās inženierkomunikācijas (elektrība, ūdens, kanalizācija).
- Zemes gabala labiekārtošana (bruģis, sēta, zālājs).
- Mēbeles un sadzīves tehnika.
- Santehnika sanmezglā — montāžu veicam.

Betons, siltinājums, pamatnes sagatavošana. Iestrādāti siltās grīdas caurules, kolektors
Gaiss- Gaiss Alpic Air. Ārējais bloks+ iekšējie bloki
Siltumsuknis Gaiss-Ūdens Midea
Oša koks, mēbeļu plāknes
Decentralizētās rekuperācijas iekārta, tā montāža
Starpsienas mansardstāvā — izbūve nodrošina atsevišķas telpas un papildu privātumu.
Mērnieka pakalpojumi — būvass un augstuma atzīmes pamatu nospraušanai nodrošina precīzu pamatu izvietojumu un atbilstību projektam.
Elektriskā siltā grīda ar termostatu — efektīva un ērti regulējama grīdas apkure, kas nodrošina vienmērīgu komfortu.
Atkarīgas no ģeogrāfiskās atrašanās vietas
Iespējamās papildus izmaksas, ar ko pasūtītājam jārēķinās
Cenā nav iekļautas kāpnes ar margām, virtuves iekārta un citas mēbeles. Ņemiet vērā, ka papildus jums būs nepieciešams ierīkot ārējo kanalizāciju, pievienot ūdeni un pievadīt elektrību līdz ēkai. Ja ņemsiet kredītu ēkas būvniecībai, banka prasīs ierīkot arī celiņus un sētu.
- Ārējās inženierkomunikācijas (elektrība, ūdens, kanalizācija).
- Zemes gabala labiekārtošana (bruģis, sēta, zālājs).
- Mēbeles un sadzīves tehnika.
- Santehnika sanmezglā — montāžu veicam.

Maksājuma dalītā struktūra
Standartā mēs strādājam ar sekojošu maksājumu struktūru, taču, ja bankas noteiktā izmaksu kārtība atšķiras, mēs pielāgojamies un atrodam kopēju risinājumu
€2000
Pēc Līguma noslēgšanas
30%
Pēc būvatļaujas saņemšanas
20%
Pēc pamatu ieliešanas
30%
Pēc mājas paneļu montāžas
15%
Pēc ģipškartona izlikšanas
5%
Pēc pieņemšanas-nodošanas akta parakstīšanas
Ieinteresēja?
Aicinām sazināties ar mums, ja ir kādi jautājumi vai vēlaties saņemt piedāvājumu. Aizpildiet anketu un sazināsimies ar jums tuvākās dienas laikā!

.png)
.png)
.png)

.%201.sta%CC%84va%20pla%CC%84ns_V3-1.jpg)

%20Lofta%20pla%CC%84ns_V1-1.jpg)
%20Apbu%CC%84ves%20laukums-1.jpg)
.jpg)
















-min-p-500.jpg)


-min-p-500.jpg)
-min-p-500.jpg)

-min-p-500.jpg)





-min-p-500.jpg)




