
Mežrozīte 34 – Moduļu māja
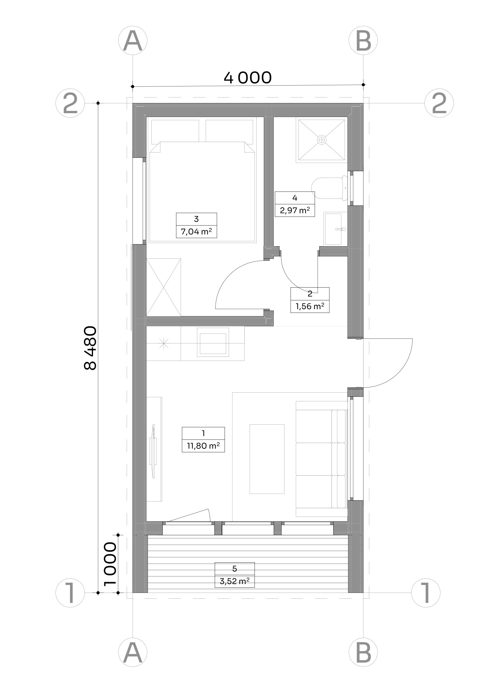
Mežrozīte 34 ir aprīkota ar nelielu terasīti zem jumta, kurā nokļūt jūs varat tieši no viesistabas. Lieliski kalpos kā atpūtas, kempinga vai dzīvojamā māja 1 cilvēkam. Lofts noderēs kā papildus guļvieta vai štābiņš jaunākajiem atpūtniekiem. Māju piegādājam veselu un novietojam uz mūsu iepriekš sagatavotiem pamatiem.

Viesistaba kopā ar virtuvi
Vannasistaba
Lofts
Terasīte zem kopēja ēkas jumta
Moduļu māja Mežrozīte 34 ar terasi zem jumta perfekta izvēle jūsu atpūtas mājai
Izgatavojam un vedam gatavu māju un novietojam uz iepriekš sagatavotiem betona stabveida pamatiem. Pamatus mēs arī paši izbūvējam. Māja ir pilnībā gatava, aprīkota ar gaiss-gaiss siltumsūkni un decentralizēto rekuperāciju.
Moduļu māja Mežrozīte 34 ar terasi zem jumta perfekta izvēle jūsu atpūtas mājai
Izgatavojam un vedam gatavu māju un novietojam uz iepriekš sagatavotiem betona stabveida pamatiem. Pamatus mēs arī paši izbūvējam. Māja ir pilnībā gatava, aprīkota ar gaiss-gaiss siltumsūkni un decentralizēto rekuperāciju.
Projekta cenas
Pamati, ārdarbi, iekšdarbi
Pamati, ārdarbi, iekšdarbi
Ražotāja dokumentu izstrāde iesniegšanai būvvaldei būvatļaujas saņemāsnai
Punktveida betona pamati. Betona stabi – 1 m dziļumā, D=160mm; apmēram 30 gab. Pamati starp stabiem tiek izklāti ar ģeoteikstilu un apbērti ar dolomīta šķembām
Pretgrauzēju siets pa visu grīdas apakšu
Pretgrauzēju siets pa visu grīdas apakšu
C24 klases kokmateriāls kalibrēts, žāvēts, ēvelēts
Melnā grīda durelis+grīdas ģipškartonsSiltinājums 150 mm
HORIZONTĀLS ārējās apdares dēlis, divreiz krāsots
Pretgrauzēju barjera 25mm
OSB mitrumizturīga plāksne 10 mm biezumā
C24 klases kokmateriāls kalibrēts, žāvēts, ēvelēts
Siltinājums 150 mm
Lofta izbūve, grīdas segums
PHR 25/560 (Klasika Klik) Jumta profils, RR2H3 Rough Matt(Matēts)
C24 klases kokmateriāls spārēm
Siltinājums 150 mm
Jumta vēja kaste - apdares dēlis, iestrādāts pretinsektu siets
C24 klases kokmateriāls kalibrēts, žāvēts, ēvelēts; Accoustic 100 mm minerālvate divās kārtās;
Apdares dēlis aplodēm un stūriem, kā arī logu un durvju aiļu apdarei
Ārējās apdares dēļu krāsa -matēta ūdens bāzes krāsa koka virsmām ārdarbos Villa Akva izvēlētajā tonī (VivaColor)
PVC 3-stiklu pakešu logi - klienta izvēlēts tonis no ārpuse / balti no iekšpuses
Ūdens un kanalizācijas iekšējās caurules iemontētas grīdā un sienās
Zem kopējā ēkas jumta iestrādāta 4 m2 liela terasīte
Elektrības sadales kaste - vienstāvīgā - 1 gab. 3 fāzu, 1 gab. noplūdes, līdz 12 gab. parastie drošinātāji. 40 mezgli. Katrs slēdzis, lampa vai rozete ir viens mezgls.
33.klases lamināts
Koka
Laminēti kokskaidu dekoratīvie sienu paneļi
Apdarīti ar krāsotu/beicētu vagondēli
kārba, aplodes, rokturi - pilns komplekts
Vinila lamināts
Decentralizētās rekuperācijas iekārta, tā montāža
Dekoratīvie paneļi speciāli vannasistabām
No saplākšņa / Plastikāta / Līmkoka
Klienta izvēlēta, kopsummā līdz 800eur ar PVN. Ja klients vēlas dārgāku santehniku, klients par to piemaksā.
Gaiss- Gaiss, ārējais bloks+ 1 iekšējais bloks
Pamati, ārdarbi, iekšdarbi
Ražotāja dokumentu izstrāde iesniegšanai būvvaldei būvatļaujas saņemāsnai
Punktveida betona pamati. Betona stabi – 1 m dziļumā, D=160mm; apmēram 30 gab. Pamati starp stabiem tiek izklāti ar ģeoteikstilu un apbērti ar dolomīta šķembām
Pretgrauzēju siets pa visu grīdas apakšu
Pretgrauzēju siets pa visu grīdas apakšu
C24 klases kokmateriāls kalibrēts, žāvēts, ēvelēts
Melnā grīda durelis+grīdas ģipškartonsSiltinājums 150 mm
HORIZONTĀLS ārējās apdares dēlis, divreiz krāsots
Pretgrauzēju barjera 25mm
OSB mitrumizturīga plāksne 10 mm biezumā
C24 klases kokmateriāls kalibrēts, žāvēts, ēvelēts
Siltinājums 150 mm
Lofta izbūve, grīdas segums
PHR 25/560 (Klasika Klik) Jumta profils, RR2H3 Rough Matt(Matēts)
C24 klases kokmateriāls spārēm
Siltinājums 150 mm
Jumta vēja kaste - apdares dēlis, iestrādāts pretinsektu siets
C24 klases kokmateriāls kalibrēts, žāvēts, ēvelēts; Accoustic 100 mm minerālvate divās kārtās;
Apdares dēlis aplodēm un stūriem, kā arī logu un durvju aiļu apdarei
Ārējās apdares dēļu krāsa -matēta ūdens bāzes krāsa koka virsmām ārdarbos Villa Akva izvēlētajā tonī (VivaColor)
PVC 3-stiklu pakešu logi - klienta izvēlēts tonis no ārpuse / balti no iekšpuses
Ūdens un kanalizācijas iekšējās caurules iemontētas grīdā un sienās
Zem kopējā ēkas jumta iestrādāta 4 m2 liela terasīte
Elektrības sadales kaste - vienstāvīgā - 1 gab. 3 fāzu, 1 gab. noplūdes, līdz 12 gab. parastie drošinātāji. 40 mezgli. Katrs slēdzis, lampa vai rozete ir viens mezgls.
33.klases lamināts
Koka
Laminēti kokskaidu dekoratīvie sienu paneļi
Apdarīti ar krāsotu/beicētu vagondēli
kārba, aplodes, rokturi - pilns komplekts
Vinila lamināts
Decentralizētās rekuperācijas iekārta, tā montāža
Dekoratīvie paneļi speciāli vannasistabām
No saplākšņa / Plastikāta / Līmkoka
Klienta izvēlēta, kopsummā līdz 800eur ar PVN. Ja klients vēlas dārgāku santehniku, klients par to piemaksā.
Gaiss- Gaiss, ārējais bloks+ 1 iekšējais bloks
Pamati, ārdarbi, iekšdarbi
Ražotāja dokumentu izstrāde iesniegšanai būvvaldei būvatļaujas saņemāsnai
Punktveida betona pamati. Betona stabi – 1 m dziļumā, D=160mm; apmēram 30 gab. Pamati starp stabiem tiek izklāti ar ģeoteikstilu un apbērti ar dolomīta šķembām
Pretgrauzēju siets pa visu grīdas apakšu
Pretgrauzēju siets pa visu grīdas apakšu
C24 klases kokmateriāls kalibrēts, žāvēts, ēvelēts
Melnā grīda durelis+grīdas ģipškartonsSiltinājums 150 mm
HORIZONTĀLS ārējās apdares dēlis, divreiz krāsots
Pretgrauzēju barjera 25mm
OSB mitrumizturīga plāksne 10 mm biezumā
C24 klases kokmateriāls kalibrēts, žāvēts, ēvelēts
Siltinājums 150 mm
Lofta izbūve, grīdas segums
PHR 25/560 (Klasika Klik) Jumta profils, RR2H3 Rough Matt(Matēts)
C24 klases kokmateriāls spārēm
Siltinājums 150 mm
Jumta vēja kaste - apdares dēlis, iestrādāts pretinsektu siets
C24 klases kokmateriāls kalibrēts, žāvēts, ēvelēts; Accoustic 100 mm minerālvate divās kārtās;
Apdares dēlis aplodēm un stūriem, kā arī logu un durvju aiļu apdarei
Ārējās apdares dēļu krāsa -matēta ūdens bāzes krāsa koka virsmām ārdarbos Villa Akva izvēlētajā tonī (VivaColor)
PVC 3-stiklu pakešu logi - klienta izvēlēts tonis no ārpuse / balti no iekšpuses
Ūdens un kanalizācijas iekšējās caurules iemontētas grīdā un sienās
Zem kopējā ēkas jumta iestrādāta 4 m2 liela terasīte
Laminēta kokskaidu mēbeļu plātne, virsma HPL
Metāls, koks
Elektriskā siltā grīda ar termostatu — efektīva un ērti regulējama grīdas apkure, kas nodrošina vienmērīgu komfortu.
Atkarīgas no ģeogrāfiskās atrašanās vietas
Būvass un augstuma atzīmes atlikšana pamatu nospraušanai
Iespējamās papildus izmaksas, ar ko pasūtītājam jārēķinās
Cenā nav iekļautas virtuves iekārta, mēbeles un trepes uz loftu. Ņemiet vērā, ka papildus jums būs nepieciešams ierīkot ārējo kanalizāciju, pievienot ūdeni un pievadīt elektrību līdz ēkai. Ja nav savu kanalizācijas meistaru un mēbeļnieku, ieteiksim savus sadarbības partnerus.
- Ārējās inženierkomunikācijas (elektrība, ūdens, kanalizācija).
- Zemes gabala labiekārtošana (bruģis, sēta, zālājs).
- Mēbeles un sadzīves tehnika.
- Santehnika sanmezglā — montāžu veicam.

Laminēta kokskaidu mēbeļu plātne, virsma HPL
Metāls, koks
Elektriskā siltā grīda ar termostatu — efektīva un ērti regulējama grīdas apkure, kas nodrošina vienmērīgu komfortu.
Atkarīgas no ģeogrāfiskās atrašanās vietas
Būvass un augstuma atzīmes atlikšana pamatu nospraušanai
Iespējamās papildus izmaksas, ar ko pasūtītājam jārēķinās
Cenā nav iekļautas virtuves iekārta, mēbeles un trepes uz loftu. Ņemiet vērā, ka papildus jums būs nepieciešams ierīkot ārējo kanalizāciju, pievienot ūdeni un pievadīt elektrību līdz ēkai. Ja nav savu kanalizācijas meistaru un mēbeļnieku, ieteiksim savus sadarbības partnerus.
- Ārējās inženierkomunikācijas (elektrība, ūdens, kanalizācija).
- Zemes gabala labiekārtošana (bruģis, sēta, zālājs).
- Mēbeles un sadzīves tehnika.
- Santehnika sanmezglā — montāžu veicam.

Maksājuma dalītā struktūra
Standartā mēs strādājam ar sekojošu maksājumu struktūru, taču, ja bankas noteiktā izmaksu kārtība atšķiras, mēs pielāgojamies un atrodam kopēju risinājumu
€2000
Pēc Līguma noslēgšanas
40%
Pēc būvatļaujas saņemšanas
40%
Pēc pilnas ārējās apdares pabeigšanas
10%
Pēc mājas piegādes uz zemes gabala
10%
Pēc pieņemšanas-nodošanas akta parakstīšanas
Paveiktie projekti
Ieinteresēja?
Aicinām sazināties ar mums, ja ir kādi jautājumi vai vēlaties saņemt piedāvājumu. Aizpildiet anketu un sazināsimies ar jums tuvākās dienas laikā!

.png)
.png)























